◆表参道 / 南青山◆
骨董通り沿い、3フロア構成の1階路面店舗スペース。
【表参道駅 10分 / 110㎡ / ¥220,000/day / iD : 47191】

アクセス

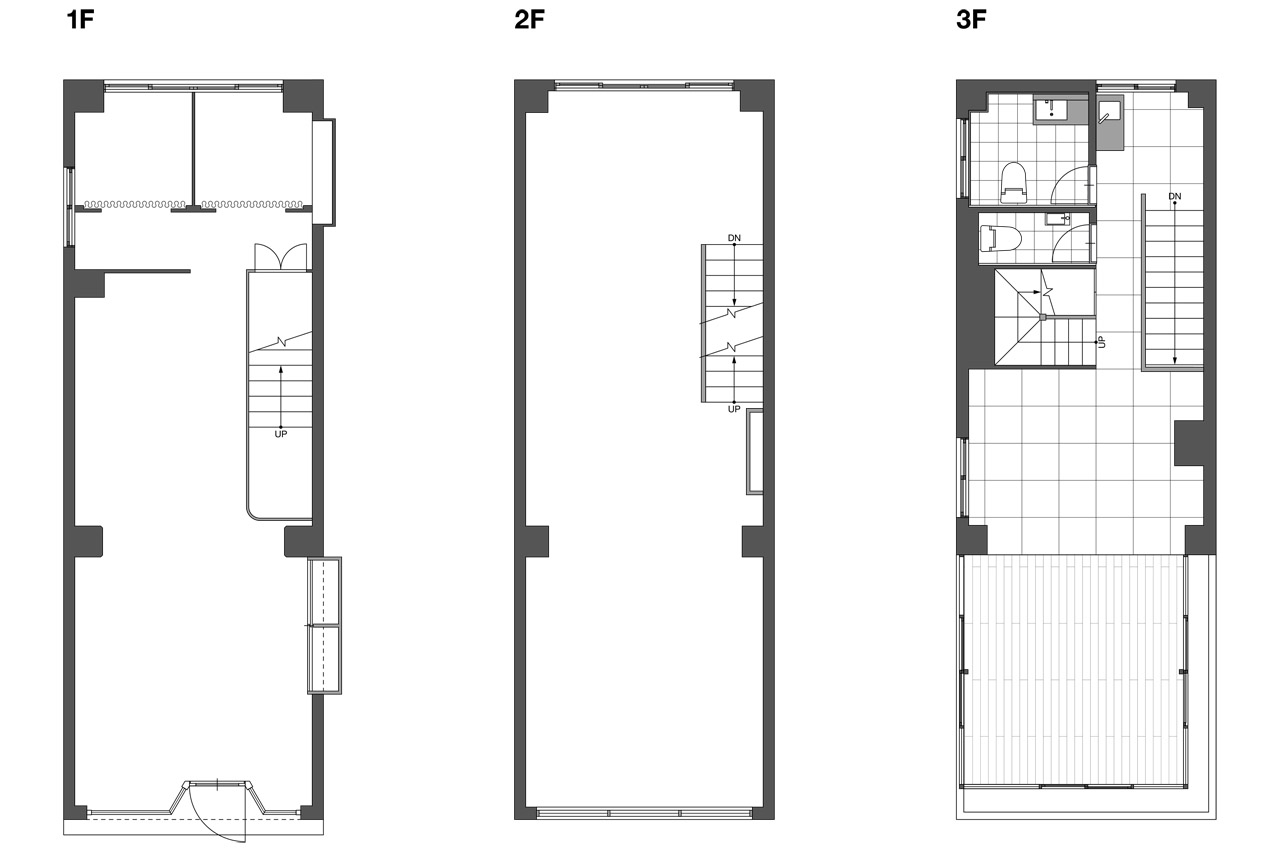
港区南青山6丁目。表参道駅から徒歩9分。骨董通り沿い路面という抜群の立地に、1、2、3階と3フロア利用可能な路面店舗スペースのご案内です。

会場の特徴

ウィンドウディスプレイが映えそうな白の外観に、白壁とモルタルフロアのシンプルな仕様が特徴の店舗型会場です。アーチ型の装飾や、暖炉跡や装飾が施されたが空間を退屈にさせないアクセントとなっています。

オススメの利用方法

骨董通り沿いの1階路面店舗会場という立地と希少性、視認性の高さを活かしてブランドの世界観を存分に発揮することができる会場として、ポップアップやイベント、展示会での利用にオススメの会場です。3フロア構成をうまく活用しフロアごとに世界観を変えることも可能な会場です。

物件ID

47191

エリア

表参道 / 南青山 / 港区 / 東京  表参道オススメ会場一覧

アクセス

東京メトロ  銀座線  「表参道駅」  より徒歩10分

*専用駐車場なし。
*近隣のコインパーキングをご利用ください。

タイプ

展示会場 / ポップアップ / イベントスペース

利用料金(税込)

*1日利用(税込/9:00~21:00)
¥220,000/day

時間外利用
21:00-9:00:¥22,000/h

*1週間利用(税込)
¥1,078,000/week

*1ヶ月利用(税込)
¥3,300,000/month

*時間外相談可能です。
*搬入から撤収までのお時間となります。

広さ

広さ
1F:44 ㎡
2F:44 ㎡
3F:約7.5㎡(共用部含まず)

天井高さ:2,800mm

搬入間口サイズW 900mm×H 2,050mm

収納人数

最適収容人数 / 着席利用:**名

最大収容人数 / スタンディング利用:60名

所在階

1-3階 / 5階建て

築年数

築**年

利用可能時間

平日:  9:00~21:00

土日祝日:9:00~21:00

*時間外相談可能です。

利用可能用途

○ ポップアップ/ その他イベント(一般客想定 / オープンイベント)

○ 展示会 (招待客想定 / クローズドイベント)

× レセプションパーティ / 結婚式等 (招待客想定 / クローズドイベント)

○ 写真 / 動画撮影

○ 動画配信  

○ 会議 / レッスン / ワークショップ

× 音楽イベント

利用に関して

飲食持ち込み:可

ケータリングサービスご紹介:不可

音量許容範囲:中 / 普通の会話 / 60db程度

自然光 : 5段階中2

ペット同伴:条件付き可能 *リードやゲージ必須

会場の外装装飾:可

利用に関して

内覧受付時間:10:00-19:00 / 内覧無料

仮押さえ

可 / 仮押さえ無料

インターネット環境

**

電源容量

15A×2回線

設備一覧

○   空調
○   電源 
○   Wi-Fi  
×   有線LAN利用
○   室内照明
×   間接照明
×   エレベーター
○   階段
×   専用エントランス
×   共用エントランス
×   冷蔵庫
×   キッチン貸し出し可能 
×   専用トイレ
○   共用トイレ
×   専用洗面所
×   共用洗面所
×   シャワールーム・バスルーム
○   フィッティングルーム
×   控え室
×   ドレッサー
×   ピクチャーレール
×   掃除機
×   暖炉
×   食器・カラトリー類
×   ステージ(簡易ステージも含む)

×   壁展示の可否

音響設備一覧

×   bluetooth接続

×   wifi接続

×   ケーブル接続

什器

○   テーブル×1台(2100×900)
○   イス×18脚
×   ソファ
×  デスク
×  デスクチェア
○   脚立
×   台車
○   延長コード
○  ハンガーラック×1台
×  テレビモニター
×   DVDプレーヤー
×  プロジェクター
×   収納スペース 
×   鏡 / 姿見

・施設敷地以外 ( 道路 ) などのご利用はご遠慮ください。
・利用料金は入退出のお時間分が発生致します。
・飲食のご利用等は別途ご相談下さい。
・搬入出の際は近隣に迷惑のかからないよう様ご配慮をお願い致します。
・火気、水気、煙、臭気など特殊な内容はお断りさせていただきます。
・床、天井、壁などへテープ、釘、ネジなどの使用は禁止となります。
・現状でのお渡しとなりご退出時には原状復帰でのお戻しをお願い致します。
・申請した使用内容と使用目的が異なる場合は利用中止いただくこともございます。
・公序良俗に反する内容のご利用はお断りさせていただきます。
・過度に大きな音の発生する内容でのご利用はご遠慮ください。
・動物のお持ち込みはご遠慮頂いております。
・ご利用後、壁や床など破損や汚れがあった場合は別途復旧料金を頂く場合もございます。
・並びが出る際には必ず整列をお願い致します。
・車の事故、損害などに関して、いかなる場合も当社並びに建物所有者は一切責任を負いません。
・本施設において紛失、破損、盗難、障害、火災、人身事故等に関する責任は当社、
 建物保有者は負いかねますので予めご了承ください。
・お客様が当スタジオの利用規約に違反しスタジオの判断でやむを得ず、
 施設の利用を中止した場合も申込書の内容に基づいたご料金が発生となります。
・お預かり物、お忘れ物はいかなる場合も発生日より 2 週間限りで処分させていただきます。
・当施設は全面禁煙となっております。
・施設利用時に発生する一般のゴミにつきましてはお持ち帰りまたは料金発生にて処分をお願い致します。
・スタジオ内の仕様(家具、照明、床、壁など)は都合により変更する場合があるので、
 予めスタッフにご確認ください。
・スタッフ及び出入り業者の出入りがございますので予めご確認ください。
・当施設を利用にしたことで発生したトラブル、損失、損害に関しては一切責任を負いません。

キャンセルポリシー

予約確定後、キャンセルされた場合は利用開始日までの日数に応じて以下のキャンセル料が発生致します。

ご予約確定前に必ずご確認くださいませ。

ご利用日の60日前まで総額の25%
ご利用日の31日前まで総額の50%
ご利用日の30日以内まで総額の100%