◆渋谷区 / 代々木上原◆
ウッドデッキと白タイルが印象的なキッチンスタジオ。
【代々木上原駅 1分 / 35㎡ / ¥25,300/h / iD:19430】
アクセス
渋谷区上原1丁目。代々木上原駅南口1より徒歩1分。代々木公園、そして渋谷エリアからもアクセス良好なレンタルキッチンスタジオのご案内です。
会場の特徴
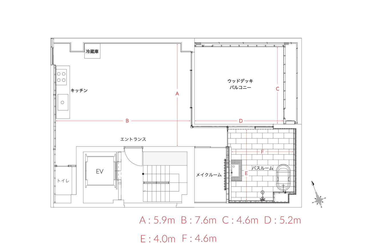
広さ82㎡、最大収容人数は30名。自然光が豊かに入る大きな窓、モルタルの壁、ステンレスキッチン、そしてシンプルな白タイル使いが印象的なキッチンスタジオです。バスルームと30㎡のウッドデッキバルコニーも備え、家具配置の変更も可能です。
オススメの利用方法
素敵なキッチン・ウッドデッキ・バスルームを活かし、上質な生活空間の撮影利用、代々木上原駅徒歩1分という立地を活かしワークショップ、展示会での利用にオススメの会場です。
物件ID
19430
エリア
代々木上原 / 渋谷区 / 東京都
アクセス
東京メトロ 千代田線 「代々木上原駅」 南口1より徒歩1分
小田急電鉄 小田原線 「代々木上原駅」 南口1より徒歩1分
*専用駐車場あり。
*近隣のコインパーキングもご利用ください。
タイプ
レンタルスタジオ / 展示会場
利用料金(税込)
*時間利用(税込/24時間利用可能/最低利用4時間)
¥25,300/h
*オプション:5Fバルコニー(税込/最低利用4時間)
イベント料金:平日9:00-18:00:¥13,200/h
通常営業時間(平日 9:00〜18:00)を除くご利用の場合、時間帯によって料金が異なります。
平日06:00〜09:00、18:00~24:00:+25% / h
休日09:00〜18:00 :+25% / h
平日24:00~06:00 :+50% / h
休日06:00〜09:00、18:00~24:00:+50% / h
休日24:00~06:00 :+75% / h
*23:00~6:30の利用は、深夜・早朝利用手数料として10,000円(税込11,000)が加算されます。
*通常営業時間外はスタッフ手配の都合がございますので、まずはお電話にてお問合せください。
*常設機材使用料、電気使用料、機材持ち込み料は、すべて無料です。
*搬入から撤収までを含んだお時間となります。
広さ
広さ:45㎡(+バルコニー30㎡)
天井高さ:3,300mm
搬入間口サイズ
エレベーター内: W 1,570mm × H 1,480mm × D 2,280mm × Diag 3,150mm
エレベーター扉: W 1,000mm × H 2,080mm
収納人数
最適収容人数 / 着席利用:20名
最大収容人数 / スタンディング利用:30名
所在階
3階 / 地上5階、地下2階建
築年数
築9年
利用可能時間
平日: 24時間利用可能
土日祝日:24時間利用可能
利用可能用途
○ ポップアップ/ その他イベント(一般客想定 / オープンイベント)
○ 展示会 (招待客想定 / クローズドイベント)
× レセプションパーティ / 結婚式等 (招待客想定 / クローズドイベント)
○ 写真 / 動画撮影
× 動画配信
○ 会議 / レッスン / ワークショップ
× 音楽イベント
利用に関して
飲食持ち込み:可
ケータリングサービスご紹介:不可
音量許容範囲:中 / 普通の会話 / 60db程度
自然光 : 5段階中4
ペット同伴:不可
会場の外装装飾:要相談
内覧
平日 10:00-12:00 | 14:00-18:00 / 30分以内無料
仮押さえ
可能 / 仮押さえ無料
*仮予約の3週間前(21日前)18:00の段階でご利用の判断が出ない場合は、
2番手以降で仮予約をされているお客様を優先してご案内をさせていただくことがございます。
仮予約の優先順位を継続する場合は上記キャンセル規定に従い、キャンセル料が発生致しますので予めご了承ください。
*終日抑え等、時間数未定にて承ったお時間のキャンセルにつきましては、
通常営業時間9:00〜18:00の9時間での換算とさせていただきます。
*休日の仮予約のキャンセルは、ご利用される日の3週間前の金曜・祝日前の18:00まで無料です。また、3週間前の金曜・祝日前18:00〜21日前のキャンセルは、20%のキャンセル料となります。それ以降は下記キャンセルポリシーに記載しています。
インターネット環境
高速インターネット NURO 上り75Mbps / 下り144Mbps
電源容量
撮影用コンセント数:平行コンセント 100V 20A×9
設備一覧
○ 空調
○ 電源
○ Wi-Fi
○ 有線LAN利用
○ 室内照明
× 間接照明
○ エレベーター
○ 階段
○ 専用エントランス
× 共用エントランス
○ 冷蔵庫
○ キッチン貸し出し可能
○ 専用トイレ
× 共用トイレ
○ 専用洗面所
× 共用洗面所
○ シャワールーム・バスルーム
○ フィッティングルーム
× 控え室
○ ドレッサー
× ピクチャーレール
○ 掃除機
× 暖炉
○ 食器・カラトリー類
× ステージ(簡易ステージも含む)
× 壁展示の可否
音響設備一覧
○ bluetooth接続
× wifi接続
× ケーブル接続
什器
○ ダイニングテーブル×1台: 120×235×95 cm
○ イス(ハイスツール) × 6脚
× ソファ
× デスク
× デスクチェア
○ 脚立
○ 台車
○ 延長コード
○ ハンガーラック×1台
× TVモニター
× DVDプレーヤー
× プロジェクター
× 収納スペース
○ 鏡 / 姿見
ご利用前の注意事項
事前にご確認いただきたい注意事項です。下記ご了承の上、お問い合せください。
■通常営業時間は、平日9:00〜18:00です。
■営業時間外(18:00~9:00)のご利用は、通常料金の25%〜増の金額にて承っております。
■土・日・祝祭日のご利用は、通常料金の25%〜増の金額にて承っております。
■23:00~6:30のご利用は、深夜・早朝利用手数料として¥10,000(税込11,000)が加算されます。
■通常営業時間外はスタッフ手配の都合がございますので、まずはお電話にてお問合せください。
■常設機材使用料、電気使用料、機材持ち込み料は、すべて無料です。
■スタジオマンはおりません。撮影、搬入・搬出の補助は行えませんのでご了承ください。
■ご利用時間は、撮影時間・イベント時間に関わらず、搬入から搬出までを含みます。
■搬入・搬出はエレベーターをご利用ください。下記サイズ以上の搬入物がある場合は事前にご相談ください。
>エレベーター内サイズ:横幅 157cm / 奥行 148cm / 高さ 228cm / 対角 315cm
>エレベーター扉サイズ:横幅 100cm / 高さ 208cm
■必要に応じて養生をお願いいたします。
■オプションに関しては事前予約が必要になります。
■電力量は事前にご確認ください。
ご利用規約
ライフサウンド株式会社が運営するOPRCTのスタジオ/スペース利用に関する規約です。
スタジオ/スペースの仮予約、本予約申し込みの際は、事前に内容をご確認いただきますようお願い申し上げます。
スタジオ/スペースの使用目的について
ライフサウンド株式会社(以下、「当社」といいます)の管理・運営する、「OPRCT」(以下、「当施設」といいます)は、広告・ウェブ・雑誌等の撮影および展示会・PR、ワークショップ、セミナー、展覧会等のためのレンタルスペースです。その他の目的でのご利用はご遠慮いただきますようお願いいたします。
適用範囲と変更について
本規約は、当社が提供する本サービスを利用するにあたり、当社と利用者との間の一切の関係に適用されます。
当社は事前の通知なく、本規約及びサービス、料金を変更・追加できるものとします。
また、変更及び追加後も利用者はそれらを承諾するものといたします。
ご利用料金について
通常営業時間(平日 9:00〜18:00)を除くご利用の場合、時間帯によって料金が異なります。
平日06:00〜09:00、18:00~24:00:+25% / h
休日09:00〜18:00 :+25% / h
平日24:00~06:00 :+50% / h
休日06:00〜09:00、18:00~24:00:+50% / h
休日24:00~06:00 :+75% / h
■23:00~6:30の利用は、深夜・早朝利用手数料として10,000円(税込11,000)が加算されます。
■通常営業時間外はスタッフ手配の都合がございますので、まずはお電話にてお問合せください。
■常設機材使用料、電気使用料、機材持ち込み料は、すべて無料です。
■スチール・ムービー 最低利用時間3h
■イベント 最低利用時間4h
■料金・キャンペーンは予告なく変更させていただく場合がございます。
<撮影ご利用の場合>
・お支払いは当日現金、もしくは銀行振り込み(月末〆、翌月末払い)にてお願いいたします。初回利用は、原則当日現金でのお支払いをお願いいたします。
<イベントご利用の場合>
・初回利用のお支払いは事前振込にてお願いいたします。決定後、1週間以内にお振込をお願いいたします。お振込手数料は利用者側にてご負担いただきます。当日延長、オプション等で差額が出た場合は現金でのご精算となります。
・料金改定などがあった場合は、初期見積もりの単価が有効となります。
<有料ロケハンの場合>
・お支払いは当日現金にてお願いいたします。
・平日に30分以上のロケハンを希望される場合、撮影内容に準じて1時間単位で料金が発生いたします。
・撮影利用のお客様を優先的にご案内しているため、確実にお時間を抑えたい場合は撮影内容に準じて最低利用時間分の料金が発生いたします。
・休日にロケハンを希望される場合、撮影内容に準じて最低利用時間分の料金が発生いたします。
振込先:
PayPay銀行 すずめ支店 普通預金 6176826 ライフサウンド(カ)スタジオテラノヴァグチ
・2回目以降の利用は請求書でのお支払いも可能です。
・請求書発行の場合、支払サイトはご利用された月末締め、翌月末払いとなります。お振込手数料は利用者側にてご負担いただきます。
ご利用時間の延長について
・後ろの利用予定が無い場合に限り、ご利用時間の延長が可能となりますが、お断りさせていただく場合もございますので予めご了承ください。
延長にあたっては当社指定のレンタル料金が1時間単位で発生いたします。
スタジオ/スペースの予約について
・お電話、メールにてご決定を承った場合、当社利用規約をご確認・同意の上、決定後申込フォームに必要事項を記入に送信をお願いします。受領後、入力内容につきましてこちらよりお伝えする事がある際は、別途ご連絡させていただきます。
・他のお客様のご予約状況により、ご希望の撮影日時のご予約をお受けできない場合がございますので予めご了承ください。
・電話、メールいずれの場合もご予約の決定を承った場合は、当社利用規約に同意したものとしてお取り扱いさせていただきます。
・ご利用日当日は、ご予約時間ちょうどからお入りいただけます。
仮予約・本予約のキャンセルについて
【撮影予約の場合】
・仮予約のキャンセルは、ご利用日の7日前18:00から、仮予約頂いたお時間分の料金に対して、以下のキャンセル料金が発生いたします。
7日前18:00〜6日前(20%分のキャンセル料金)
5日前(40%分のキャンセル料金)
4日前(60%分のキャンセル料金)
3日前(80%分のキャンセル料金)
2日前~当日(100%分のキャンセル料金)
・土・日の仮予約のキャンセルは、ご利用される日の前週の金曜日18:00まで無料です。前週の金曜日18:00〜6日前のキャンセルは20%のキャンセル料となります。
・終日抑え等、時間数未定にて承ったお時間のキャンセルにつきましては、通常営業時間9:00~18:00の9時間での換算とさせていただきます。
・天候、交通機関、災害による遅延・キャンセルに付きましては補償、変更は出来かねますので予めご了承くださいませ。
・決定後のキャンセル料金は一律100%のキャンセル料となります・キャンセル料金はキャンセル後、一週間以内にお支払いください。
・レンタル機材のキャンセルは2日前迄にお願いいたします。それ以降の場合、100%の料金が発生いたしますのでご注意ください。
【イベント予約の場合】
・仮予約のキャンセルは、ご利用日の21日前18:00から、仮予約頂いたお時間分の料金に対して、以下のキャンセル料金が発生いたします。
21日前18:00〜13日前18:00(50%分のキャンセル料金)
13日前18:00~当日(100%分のキャンセル料金)
・土・日の仮予約のキャンセルは、ご利用される日の前週の金曜日18:00まで無料です。前週の金曜日18:00〜13日前のキャンセルは50%のキャンセル料となります。
・終日抑え等、時間数未定にて承った仮予約のキャンセルにつきましては、通常営業時間9:00~18:00の9時間での換算とさせていただきます。
・天候、交通機関、災害による遅延・キャンセルに付きましては補償、変更は出来かねますので予めご了承くださいませ。
・決定後のキャンセル料金は一律100%となります。キャンセル料金はキャンセル後、一週間以内にお支払いください。
【有料ロケハンの場合】
・最低利用時間分の料金が発生するロケハンに関しては、撮影予約のルールが適用されます。
ご利用日の変更について
・スタジオ/スペースご利用日の変更は原則として上記キャンセル規定に従い、再度、予約申込みの手順を経て変更できるものとします。
但し、当社側の都合や当社判断による変更についてはこの限りではありません。
駐車場利用について
・車高2.1mまで駐車可能です。
・ビル前の道路は、2tトラック以上は通行できません。
・駐車以外のご利用は、有料となります
搬入・搬出について
・当施設は一部、住宅に隣接しております。撮影機材や美術大道具・小道具の搬入・搬出時は、音量にご注意いただき、静かに作業していただきますようお願いいたします。
・早朝・深夜(23:00〜6:30)の搬入・搬出は、ガレージに入る車両(車高2.1m以下)を使用し、ガレージ内でのみ行うことが可能です。ガレージ内で完結できない規模感の場合は、搬入・搬出の時間を変更していただきます。
・ガレージ内・スロープでのアイドリングは、近隣のご迷惑となりますのでご遠慮いただきますようお願いします。
・井ノ頭通り(都道413号)沿いの一部箇所での駐停車は、近隣のご迷惑となりますのでご遠慮いただきますようお願いします。
ストロボ機材の使用について
・スタジオ/スペース内でストロボを利用する場合は遮光カーテンを閉め、完全遮光をお願いいたします。
・尚、外スペースでのストロボ利用は禁止とさせていただきます。
スタジオ/スペースの原状回復・清掃管理について
・ご利用後の原状復帰と清掃は、利用者にて行ってください。スタジオ/スペース内の機材、家具備品類は必ず元の場所に戻してください。ご利用終了時に点検をいたします。尚、特別に清掃の必要が生じた場合には別途清掃費が発生いたします。
・ご利用時間は搬出入、及びスタジオ内の現状回復・清掃を含めた時間となっております。
・複数日にまたがって利用される場合は、必要に応じてゴミ回収及び備品の補充のみ対応させていただきます。
免責及び損害賠償について
・使用期間中、当施設において生じた天災・火災・盗難・破損等全ての事故について当社は一切の責任を負いません。また、当社の責めに帰すべき事由により利用者に損害が生じた場合、当社は、損害が生じた時に当施設の使用に関して利用者から支払われた金員の全部又は一部を返還すること以外の補償はいたしかねます。
・白ホリゾントの汚れが多く、塗装の必要がある場合は、塗装料を頂く場合がございますのでご注意ください。スタジオ/スペース内は一部土足厳禁となっております。靴を履いて撮影される場合は、靴裏が綺麗なものを利用するか、靴裏を拭い養生テープを貼っていただきますようお願いいたします。
・万が一、当施設・機材への破損が発生した場合、当社指定業者での一部または全体の完全補修にかかる費用をご請求させていただきます。補修に関しては、当社の営業に支障が出ないよう迅速にご対応ください。また営業に支障が出るような破損などが生じた場合、損害を賠償いただく場合がございます。
音響機材の使用について
・全スペースに置いて音響機材を利用する場合、近隣の迷惑にならないよう配慮をしてください。また21:00以降の音響の利用には環境基準値を準拠した運用をお願いいたします。
・Space Tでの大音量の撮影・イベントの際は、85db以内に抑えて運用をしてください。騒音振動の苦情が来ることのないように常識の範囲でご利用ください。音響利用時はすべての扉を閉め、他の階、または外部に音が漏れない範囲でご利用ください。
インターネット回線について
・インターネットサービスご利用により発生した損害につきましては、一切の責任を負いかねますので、ご了承の上でのご利用をお願いいたします。
・お客様の通信端末環境や回線の混雑状況により、通信速度の低下や繋がらない場合もございますので、予めご了承ください。
・時間帯によっては混み合う場合があり、通信速度が低下する場合もございます。
利用の制限について
以下の項目に該当する場合は、ご利用をお断りいたします。なお、ご契約の解除、利用の中止、解除等をした場合は、事由のいかんを問わず利用者より受領した会場利用料は一切返金いたしません。
・利用申込書に偽りの記載があった場合
・利用規約、その他当施設が定める規則等に違反した場合。またこれらに基づく施設担当者の指示に従わなかった場合
・政治、宗教、差別、ヘイトスピーチなどに関係する場合。
・公序良俗に反する場合
・暴行または脅迫にわたる行為その他の違法な行為をした場合
・当施設の管理・運営上、やむを得ない事由が生じた場合
キッチンの使用について
・キッチンをご利用時、調味料・油・布巾類・サランラップ・キッチンペーパー等の食材、消耗品類はお客様持参でお願いいたします。スタジオにてご用意はございません。
・揚げ物等、油を多量に使う場合は、使用済みの油を固める溶剤をご用意の上、処理をしてから鍋等を洗ってください。シンク内には絶対に流さないようお願いいたします。
・熱機器や刃物等のお取り扱いには十分ご注意ください。食中毒等のトラブルに関しても弊社では一切責任を負いかねますので、衛生面にも十分ご注意ください。
・刃物や調理用機器などの設備がございますので、お子様連れの場合は細心の注意を払っていただきますようお願いいたします。
・キッチン設備、食器類はご自由にご利用いただけますが(一部展示品、ストック等除く)、ご使用後は原則としてご利用時間内に洗浄・清掃後、食器類・調理器具はテーブル上に置いてください。椅子やテーブル等の家具類、その他撮影機材、備品類は利用前の状態にお戻しください。
ゴミ廃棄について
・各スタジオ/スペース内のゴミ箱に入りきらないゴミ、またダンボール、発砲スチロール、不燃物など分別外のゴミは、お持ち帰りください。
暴力団排除条例制定に伴う排除規定について
利用者は当社に対し、当施設の利用の申込みまた当施設の利用に際し、以下のいずれかに該当することが判明した場合、またいずれかに該当する行為をことが判明した場合、申込前、契約後又は利用中であっても、当社は、当施設の使用を拒絶すること、また、何らの催告なく本契約を解除又は利用の中止をすることができることとします。なお、利用者にいかなる損害が生じても当社は一切の責任を負いません。
・暴力団または暴力団員
・暴力団員でなくなってから5年を経過しない者
・暴力団または暴力団員が経営を支配し、または経営に実質的に関与している者
・暴力的要求行為(暴力団対策法第9条各号に定める行為をいう。)
・暴行・脅迫・強要・業務妨害行為、及びその他の違法行為
・前号のほか、不当な要求行為
ご利用上のお願い・注意事項
・スタジオマン・イベントスタッフはおりませんので、予めご了承ください。ご利用中、当社施設担当者の出入りがある場合がございます。
・撮影終了後は、利用者にて動かされた機材はお戻しいただき、貸出時と同じ状態で返却をお願いいたします。
・ご利用時は騒音防止の為スタジオ/スペースの扉は必ず閉めていただき、撮影スペース内での走り回る、飛び跳ねる、過度に騒ぐ等、他のテナントに迷惑のかかる行為はお控えいただきますようお願いいたします。また、エレベーターホールでの携帯電話やお打ち合わせはご遠慮ください。
・電源車、可動式ジェネ、スモークのご利用を検討されている場合は必ず事前にご相談ください。
・非常口誘導灯はいかなる演出時においても消灯できません。
・スタジオ/スペース内及び、ビル前・周辺では全面禁煙となります。近隣住宅から苦情が出ておりますので、ご理解・ご協力の程よろしくお願いいたします。
・スタジオ/スペース利用時は、近隣への騒音防止の為、窓の開放は禁止しております。
・音響・振動面においては周辺住民に配慮し、常識の範囲内でご利用ください。
・著作権使用料に関してはご利用者様での申請・支払いとなります。
・スタジオ/スペース内での飲食・着替えは所定の場所でお願いいたします。白ホリゾント上・養生上での飲食はご遠慮ください。
・スタジオ/スペース内カメラは利用者様が安全にご利用いただく為、また防犯上の理由にて設置させていただいております。
・スタジオ/スペース内の常設照明・背景紙は当社施設担当者の許可なく移動等行わないようお願いいたします。
・背景紙のご利用は事前にご連絡をお願いいたします。(別途料金が発生致します。)
・お申し込み内容と異なった内容のご利用はお断りさせていただきます。下着・ヌードでの撮影・イベントはできません。
・ペット等の動物を使用した撮影・イベントのご利用、また同伴での入館はお断りさせていただきます。
・引火物等の危険物の持ち込みはお断りします。
・その他、撮影の内容によりご利用をお断りさせていただく場合がございます。
・忘れ物は、一定期間内にお受け取りにお越しいただけない場合、着払いにて郵送させていただきます。
・天候、災害、停電、通信設備の不調、その他不測の事態によりサービス提供が困難と判断した場合、ご予約・仮予約を解除させていただく場合がございます。
上記サービスの停止に関連してお客様及び第三者に生じた損害についていかなる責任も負いかねますのでご了承ください。
・イベントにおける出演者は、公演の実施に必要な査証(ビザ)その他の入国手続を、自己の責任および負担において行うものとします。弊社は、出演者が適法な入国資格を有しないこと、または当該手続に関して生じた問題により発生した損害等について、一切の責任を負わないものとします。
・利用規約に反する行為やスタッフの指示に従っていただけない場合はご利用を中止させていただき、程度によりその後のご利用をお断りさせていただく事がございます。またその際の料金のご返金、お客様の損害に対する補償はいたしかねますのでご了承ください。
・当スタジオは複数のお客様に連続してご利用いただくレンタルスペースの性質上、ご予約確定後からご利用日当日までの間に、他の利用者による使用、設備トラブル、メンテナンス、不可抗力等により、スタジオ内の壁面、床、建具、家具、備品、その他設備の状態や仕様が変更となる場合、また破損、汚損が生じる場合がございます。当社は可能な限り原状回復および代替対応に努めますが、ご利用日当日において、ご予約時またはWEBサイト、SNS等の掲載写真、ならびに事前確認時と同一の状態を保証するものではありません。利用者は、上記の状態変動の可能性があることをあらかじめ了承のうえ、本サービスを利用するものとします。
※本規約は予告なく変更する場合もございますので、予めご了承ください。なお、利用者は、契約成立の時期に関わらず変更後の規約に従っていただきます。 (2024.10.09版)
予約確定後、キャンセルされた場合は利用開始日までの日数に応じて以下のキャンセル料が発生致します。
ご予約確定前に必ずご確認くださいませ。
仮予約のキャンセルは、ご利用される日の21日前18:00までは無料です。
以後、仮予約いただいたお時間分の料金に対して、 以下のキャンセル料金が発生致します。
また、お電話にて決定いただいた時点で契約成立となり、 以後のキャンセル料は期間に関わらずご予約時間の100%となります。
※ 仮予約の3週間前(21日前)18:00の段階でご利用の判断が出ない場合は、
2番手以降で仮予約をされているお客様を優先してご案内をさせていただくことがございます。
仮予約の優先順位を継続する場合は上記キャンセル規定に従い、キャンセル料が発生致しますので予めご了承ください。
※ 終日抑え等、時間数未定にて承ったお時間のキャンセルにつきましては、
通常営業時間9:00〜18:00の9時間での換算とさせていただきます。
※ 休日の仮予約のキャンセルは、ご利用される日の3週間前の金曜・祝日前の18:00まで無料です。また、3週間前の金曜・祝日前18:00〜21日前のキャンセルは、20%のキャンセル料となります。それ以降は下記のとおりです。
*21~13日前まで : ご利用料金の50%
*13日前~当日 : ご利用料金の100%
